Hyundai i-30: Лампы накаливания / Фары и передние противотуманные фары прицеливание

Hyundai i30 (PD) 2018-2023 Руководство по эксплуатации / Обслуживание / Лампочки / Фара головного света и передняя противотуманная фара прицеливание

Наведение фары

Hyundai i30. aiming

1. Накачайте шины до указанного давление и снять любые нагрузки из транспортного средства, кроме водителя, запасное колесо и инструменты.

2. Автомобиль должен быть установлен на ровный пол.

3. Нарисуйте вертикальные линии (Вертикальные линии проходящий через соответствующую головку центры ламп) и горизонтальная линия (горизонтальная линия, проходящая через центр фар) на экран.

4. С налобным фонарем и аккумулятором нормальное состояние, направьте фары поэтому самая яркая часть падает по горизонтали и вертикали линии.

5. Чтобы направить ближний свет влево или вправо, поверните драйвер по часовой стрелке или против часовой стрелки. Чтобы направить ближний свет вверх или вниз, поверните драйвер по часовой стрелке или против часовой стрелки. Чтобы направить дальний свет вверх или вниз, поверните драйвер по часовой стрелке или против часовой стрелки.

Направление передних противотуманных фар

Hyundai i30. aiming

Передняя противотуманная фара может быть направлена ​​как такая же манера фар цель. С передними противотуманными фарами и аккумулятор в нормальном состоянии, направьте передние противотуманные фары. Чтобы направить передний туман лампа вверх или вниз, поверните драйвер по часовой стрелке или против часовой стрелки.

Точка прицеливания

Hyundai i30. aiming

Hyundai i30. aiming

Фара ближнего света

Hyundai i30. aiming

1. Включите ближний свет без водителя.

2. Линия светотеневой границы должна проецироваться на линию светотеневой границы, показанную на картина.

3. При наведении на ближний свет вертикальное наведение следует регулировать после регулировка горизонтальной наводки.

4. Если установлено устройство регулировки фар, отрегулируйте выравнивание фар. переключатель устройства с 0 положениями.

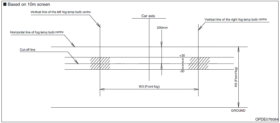
Передняя противотуманная фара

Hyundai i30. aiming

1. Включите передний противотуманный фонарь без присутствия водителя.

2. Светотеневая граница должна проецироваться в допустимом диапазоне (заштриховано). область).

Передняя противотуманная фара

■ Тип А ■ Тип Б 1. Ослабьте штифтовые фиксаторы нижнюю крышку, а затем снимите под прикрытием. 2. Протяните руку сзади передний бампер...

Замена лампы бокового повторителя

Введите Если лампочка не работает, мы рекомендую иметь автомобиль проверено авторизованным HYUNDAI ремонтник. Тип Б 1. Снимите блок лампы с автомобиль, поддев линзу и вытащить сборку...

Дополнительная информация:

Hyundai i30 (PD) 2018-2023 Руководство по эксплуатации: Развал-схождение и балансировка шин


Колеса вашего автомобиля были тщательно выровнены и сбалансированы на завод, чтобы дать вам самую длинную шину жизнь и лучшие общие показатели. В большинстве случаев вам не потребуется снова выровнять колеса. Однако, если вы заметили необычную шину износ или ваше транспортное средство тянет в одну сторону или другой, может потребоваться выравнивание быть сброшенным...

Hyundai i30 (PD) 2018-2023 Руководство по эксплуатации: Подсветка вещевого ящика, Подсветка багажника


Лампа перчаточного ящика Лампа перчаточного ящика загорается, когда перчаточный ящик открывается. УВЕДОМЛЕНИЕ Во избежание ненужной зарядки слив системы, закрыть перчаточный ящик безопасно после использования перчаточного ящика. Лампа багажного отделения Лампа багажного отделения загорается, когда дверь багажника открыл...