Kia Stinger: система экстренного вызова / блок экстренного вызова (eCall)

Kia Stinger CK 2018-2023 Руководство по ремонту / Стеклоочиститель/омыватель ветрового стекла / Система экстренного вызова / Блок экстренного вызова (eCall)

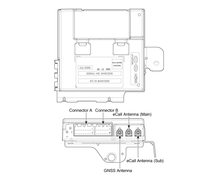
Компоненты и расположение компонентов
Компонент

Устройство eCall для AVN установлено в головном устройстве AVN.

Процедуры ремонта
Удаление

Выполните тестовый режим после:

Замена блока eCall

Замена резервной батареи (BUB)

Замена динамика eCall и микрофона

Замена антенны eCall и антенны на крыше

Будьте осторожны, чтобы не поцарапать лицевую панель кластера и связанные с ней части.

При снятии с помощью плоской отвертки или съемника оберните защитным заклейте инструмент лентой, чтобы предотвратить повреждение компонентов.

Аккуратно храните аварийную подушку и обращайтесь с ней при снятии/установке. так как смазка и масло могут оставить пятно на отделке.

блок eCall

1.

Отсоедините отрицательную (-) клемму аккумуляторной батареи.

2.

Снимите корпус перчаточного ящика.

(См. Кузов — «Корпус перчаточного ящика»)

3.

Отсоедините разъемы блока eCall (A).

4.

Снимите блок eCall (A) после ослабления крепежного винта и гаек.

Антенна eCall

1.

Отсоедините отрицательную (-) клемму аккумуляторной батареи.

2.

Снимите основную подушку безопасности в сборе.

(См. раздел «Кузов» — «Главная аварийная подушка в сборе»)

3.

Снимите антенну eCall (A) после ослабления крепежных винтов и отсоедините разъем (В).

Динамик электронного звонка

1.

Отсоедините отрицательную (-) клемму аккумуляторной батареи.

2.

Снимите решетку центрального динамика (А) с помощью съемника.

3.

Отсоедините защитный разъем (A) и датчик автоматического освещения и фотодатчик. соединитель (В).

4.

Снимите динамик eCall (A) после ослабления крепежных винтов.

5.

Отсоедините разъем динамика eCall (B).

Замена

Резервное копирование устройства eCall Батарея (БУБ)

1.

Отсоедините отрицательную (-) клемму аккумуляторной батареи.

2.

Снимите модуль eCall.

3.

Чтобы заменить резервную батарею, извлеките ее после извлечения резервной крышку батарейного отсека (А).

Монтаж

Выполните тестовый режим в следующих случаях.

Замена блока eCall

Замена резервной батареи (BUB)

Замена динамика eCall и микрофона

Замена антенны eCall и антенны на крыше

блок eCall

1.

Установите блок eCall.

2.

Подсоедините разъемы блока eCall.

3.

Установить корпус перчаточного ящика.

4.

Подсоедините отрицательную (-) клемму аккумуляторной батареи.

Антенна eCall

1.

Установите антенну eCall.

2.

Подключите разъем антенны eCall.

3.

Установите основной аварийный щиток в сборе.

4.

Подсоедините отрицательную (-) клемму аккумуляторной батареи.

Динамик электронного звонка

1.

Подключите разъем динамика eCall.

2.

Установите динамик eCall.

3.

Подсоедините разъем безопасности и датчик автоматического освещения и разъем фотодатчика.

4.

Установите решетку центрального динамика.

5.

Подсоедините отрицательную (-) клемму аккумуляторной батареи.

осмотр

Осмотр (с KDS)

1.

В электрической системе тела неисправность можно быстро диагностировать с помощью система диагностики автомобиля (КДС).

Диагностическая система (KDS) предоставляет следующую информацию.

(1)

Самодиагностика: проверяет неисправность и кодовый номер (DTC)

(2)

Текущие данные: проверяет состояние входных/выходных данных системы.

(3)

Проверка срабатывания: проверяет рабочее состояние системы.

(4)

Дополнительная функция: управление другими функциями, включая систему. настройка параметров и регулировка нулевой точки

2.

Выберите «Модель автомобиля» и «Телематическую систему» ​​для проверки по порядку. проверить автомобиль тестером.

3.

Выберите меню «Текущие данные», чтобы проверить текущее состояние ввода/вывода. данные.

Режим тестирования eCall

Нажмите кнопку SOS TEST, чтобы активировать звуковое сопровождение и протестировать систему eCall. согласно руководству.

На этапе Test Call, который является последним этапом тестового режима, нажмите кнопку SOS кнопку по звуковому сопровождению для отправки данных о неисправных компонентах в колл-центр.

Чтобы выйти из тестового режима, снова нажмите кнопку SOS TEST во время звукового сопровождения.

1.

Условия работы тестового режима:

(1)

Аккумулятор автомобиля подключен правильно.

(2)

Прошла одна минута после зажигания.

(3)

Автомобиль остается неподвижным в течение 1 минуты или более.

2.

Условия, препятствующие работе тестового режима:

(1)

Выполняется вызов PSAP.

(2)

Режим обратного звонка: система eCall переходит в режим обратного звонка после успешный вызов и находится в режиме ожидания в течение 120 минут для приема вызовов из колл-центра.

(3)

Тестовый режим автоматически завершается, когда скорость автомобиля достигает 1 км/ч или более или проехал 300 м или более.

(4)

Не прошло и двух минут после завершения предыдущего тестового звонка.

3.

Последовательность работы тестового режима (аудио сопровождение):

(1)

Светодиодный тест

(2)

Тест динамика

(3)

МИК тест

(4)

Тест BUB (резервная батарея, встроенная в устройство eCall) (без отдельного уведомление предоставляется, если BUB находится в нормальном состоянии.)

Аудиоподсказка резервного аккумулятора

Если звуковое сопровождение сообщает, что «Напряжение "Резервная батарея разряжена, чтобы сделать экстренный вызов", повторите тестовый режим после достаточной зарядки батарея за рулем.

(5)

Тестовый звонок (Нажатие кнопки SOS отправляет результат теста на PSAP.)

Красный светодиод остается включенным, если один или несколько кодов неисправности системы eCall выпускаются.

Если горит красный светодиод, обязательно используйте диагностический прибор (KDS/GDS) для проверьте на наличие сбоев.

Проверка резервной копии Батарея

Резервная батарея (BUB), встроенная в систему eCall, имеет ограниченный срок службы и его характеристики зарядки/разрядки могут ухудшиться после продолжительного использования.

Резервный аккумулятор гарантирует работу системы eCall, когда транспортное средство батарея не может быть использована из-за аварии. Обязательно проверьте резервную батарею если загорится красный светодиод, при необходимости замените его.

Гарантия на резервную батарею 3 года.

Проверяйте резервную батарею каждые три года и при необходимости заменяйте ее.

(См. Блок экстренного вызова — «Процедуры ремонта»)

Система eCall предназначена для срочного звонка в колл-центр. во время чрезвычайной ситуации. Произвольное удаление или эксплуатация компонентов системы может повлиять на безопасность людей и может привести к ложному оповещению о несчастный случай в центре экстренной помощи.

Система экстренного вызова
Компоненты и расположение компонентов Компоненты 1. Головное устройство (АВН, Аудио) 2. Кнопка экстренного вызова 3. Микрофон экстренного вызова 4. Антенна на крыше 5. Блок экстренного вызова...
Кнопка экстренного вызова (eCall)
Компоненты и расположение компонентов Компонент Процедуры ремонта Удаление 1. Отсоедините отрицательную (-) клемму аккумуляторной батареи. 2. Удалять ...
Дополнительная информация:

Руководство по эксплуатации Kia Stinger CK 2018-2023: Система удержания в полосе (LKA)


Система Lane Keeping Assist (LKA) предназначена для обнаружения разметки полосы движения. дорогу с помощью камеры переднего вида на лобовом стекле и помогает водителю рулевое управление, помогающее удерживать автомобиль на полосе движения. Когда система обнаруживает, что транспортное средство отклоняется от своей полосы движения, она предупреждает водителя...

Kia Stinger CK 2018-2023 Руководство по техническому обслуживанию: Радиатор отопителя


Процедуры ремонта Замена 1. Отсоедините отрицательную (-) клемму аккумуляторной батареи. 2. Ослабив гайки и болты, снимите основную защитную накладку и кожух. поперечная балка в сборе. (См. Нагреватель — «Нагреватель») ...