Kia Rio: система контроля выбросов / система контроля выбросов паров топлива

Kia Rio 2017-2023 YB Руководство по ремонту / Система контроля выбросов / Система контроля выбросов паров топлива

Описание и работа
Описание

Система контроля выбросов паров топлива предотвращает попадание паров топлива, хранящихся в топливном баке. испаряясь в атмосферу. Когда топливо испаряется в топливном баке, пар проходит через вентиляционные шланги или трубки к адсорберу, наполненному древесным углем, и канистра временно удерживает пары древесного угля. Если ЕСМ решит вытянуть собранный пар в камеры сгорания при определенных условиях эксплуатации, он будет использовать вакуум во впускном коллекторе, чтобы переместить его.

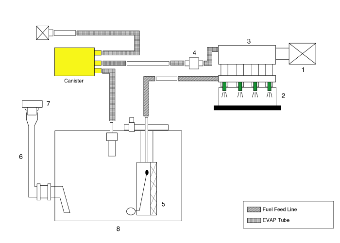
Принципиальные диаграммы
Схематическая диаграмма

1. Воздухоочиститель
2. Напорная труба и инжектор
3. Двигатель
4. Электромагнитный клапан управления продувкой (PCSV)
5. Топливный насос
6. Горловина топливного бака
7. Крышка топливного бака
8. Топливный бак

Канистра

Канистра заполнена древесным углем и поглощает испаряющиеся пары в топливном баке. собранные пары топлива в адсорбере втягиваются во впускной коллектор блоком ECM/PCM когда созданы соответствующие условия.

Соленоид управления продувкой Клапан (PCSV)

Электромагнитный клапан управления продувкой (PCSV) установлен в проходе, соединяющем адсорбер и впускной коллектор. Это электромагнитный клапан рабочего типа, управляемый ECM/PCM. сигнал.

Чтобы всосать поглощенный пар во впускной коллектор, ECM/PCM открывает клапан. PCSV, иначе проход останется закрытым.

Крышка топливного бака

Храповое затяжное устройство на резьбовой крышке топливного бака снижает вероятность неправильной установки, что приведет к герметизации заливной горловины. После прокладки на крышка топливного бака и фланец заливной горловины соприкасаются, храповик производит громкий щелчок, указывающий на то, что уплотнение установлено.

Клапан принудительной вентиляции картера (PCV)
Описание и работа Принцип работы Процедуры ремонта Удаление 1. Отсоедините паровой шланг (А) и снимите клапан PCV (В). ...
Канистра
Процедуры ремонта Удаление 1. Выключите зажигание и отсоедините отрицательный (-) аккумулятор. Терминал. 2. Снимите топливный бак в сборе. ...
Дополнительная информация:

Руководство по эксплуатации Kia Rio 2017-2023 YB: Настройка скорости круиз-контроля


1. Нажмите кнопку CRUISE на рулевом колесе, чтобы включить систему. Круиз загорится индикатор на комбинации приборов. 2. Разгонитесь до желаемой скорости, которая должна быть более 30 км/ч (20 миль/ч). ✽ ВНИМАНИЕ - Механическая коробка передач Для автомобилей с механической коробкой передач вы должны ...

Руководство по эксплуатации Kia Rio 2017-2023 YB: Аварийный запуск


Подключайте кабели в порядке номеров и отсоединяйте в обратном порядке. Быстрый старт Пуск от внешнего источника может быть опасен, если он сделан неправильно. Поэтому во избежание вреда к себе или повреждению вашего автомобиля или аккумулятора, следуйте этим процедурам запуска от внешнего источника. Если вы сомневаетесь, мы настоятельно рекомендуем вам ч ...