Hyundai Palisade: Система контроля выбросов паров топлива / Принципиальные схемы

Hyundai Palisade (LX2) 2020-2023 Руководство по ремонту / Система контроля выбросов / Система контроля выбросов паров топлива / Принципиальные схемы

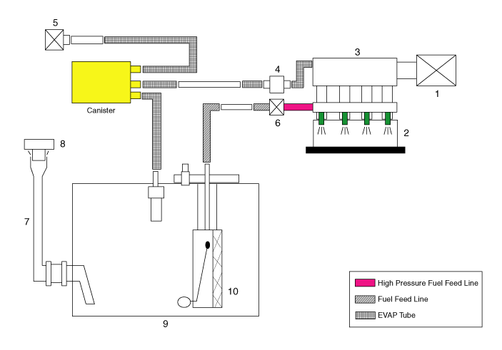
Схематическая диаграмма

Hyundai Palisade. Schematic diagrams

1. Воздухоочиститель
2. Напорная труба и инжектор
3. Двигатель
4. Электромагнитный клапан управления продувкой (PCSV)
5. Воздушный фильтр топливного бака
6. Топливный насос высокого давления
7. Топливный шланг
8. Крышка топливного бака
9. Топливный бак
10. Топливный насос низкого давления

Канистра
Канистра заполнена древесным углем и поглощает испаряющиеся пары в топливном баке. Собранные пары топлива в адсорбере всасываются во впускной коллектор с помощью ECM/PCM при соблюдении соответствующих условий.
Электромагнитный клапан управления продувкой (PCSV)
Электромагнитный клапан управления продувкой (PCSV) установлен в проходе, соединяющем адсорбер и впускной коллектор. Это электромагнитный клапан, управляющий рабочим циклом. по сигналу ECM/PCM.
Чтобы всосать поглощенный пар во впускной коллектор, ECM/PCM открывает клапан. PCSV, иначе проход останется закрытым.
Крышка топливного бака
Храповое затяжное устройство на резьбовой крышке топливного бака снижает вероятность неправильной установки, что приведет к герметизации заливной горловины. После прокладок на крышке топливного бака и фланце заливной горловины соприкасаются, храповик издает громкий щелчок, указывающий на то, что уплотнение установлено.

Описание и работа

Описание Система контроля выбросов паров топлива предотвращает накопление паров топлива в топливном баке. от испарения в атмосферу. Когда топливо испаряется из топлива бак, пар проходит через вентиляционные шланги или трубки в канистру, заполненную уголь, а канистра временно удерживает пары угля...

Канистра

Процедуры ремонта Удаление 1. Выключите зажигание и отсоедините отрицательную (-) клемму аккумуляторной батареи. 2...

Дополнительная информация:

Hyundai Palisade (LX2) 2020-2023 Руководство по техническому обслуживанию: Крышка цепи ГРМ


Процедуры ремонта Удаление • Будьте осторожны, чтобы не повредить детали, расположенные под автомобилем. (пол под крышкой, топливный фильтр, топливный бак и канистра) при поднять автомобиль с помощью подъемника...

Hyundai Palisade (LX2) 2020-2023 Руководство по техническому обслуживанию: Общие сведения о безопасности и предостережения


Общая информация о безопасности и осторожность 1. Будьте осторожны при управлении автомобилем с использованием интеллектуальной системы круиз-контроля. следующее. (1) На поворотах или подъемах/спусках • Интеллектуальная система круиз-контроля может иметь ограничения для обнаружения расстояние до впереди идущего автомобиля из-за дороги и движения условия...

Категории

Предупреждающие этикетки о подушках безопасности

Hyundai Palisade. Air Bag Warning Labels

Предупреждающие таблички о подушках безопасности, требуемые движение по национальным автомагистралям США Администрация безопасности (NHTSA), являются прилагается для предупреждения водителя и пассажиров потенциальных опасностей воздуха система сумок. Обязательно прочитайте все информация о подушках безопасности, которые установлены на вашем автомобиле в этом Инструкция по применению.

читать далее