Kia Cadenza: сцепление и тормоз / Компоненты и расположение компонентов

Kia Cadenza YG 2016-2023 Руководство по ремонту / Автоматическая трансмиссия / Сцепление и тормоз / Компоненты и расположение компонентов

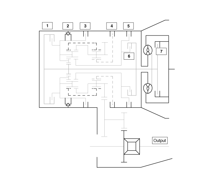
Расположение компонентов

1. Муфта повышающей передачи (OD/C)
2. Обгонная муфта (OWC)
3. Низкий и задний тормоз (LR/B)
4. Понижающий тормоз (UD/B)
5. 26 тормоз (26/Б)
6. Сцепление 35R (35R/C)
7. Демпфирующая муфта (D/C)

Описание и работа
Описание 6-ступенчатая автоматическая коробка передач состоит из повышающей передачи. сцепление (OD/C), одностороннее сцепление (OWC), нижний и задний тормоз (LR/B), тормоз понижающей передачи (UD/B), тормоз 26 (26/B) и ...
Диаграмма потока
Схема потока энергии P,NUD/BLR/B26/B35R/COD/COWC● ▣ Направление вращения ▶Активация нижнего и заднего тормоза (LR/B) → Overdrive (O/D) Блокировка ступицы → Средняя и задняя блокировка P/C ▶Вход S...
Дополнительная информация:

Kia Cadenza YG 2016-2023 Руководство по техническому обслуживанию: Регулятор температуры воды в сборе Процедуры ремонта


Снятие и установка • Во избежание повреждений осторожно отсоединяйте разъемы проводки, удерживая часть разъема. • Пометьте все провода и шланги, чтобы избежать неправильного соединения. Узел контроля температуры воды 1. ...

Kia Cadenza YG 2016-2023 Руководство по ремонту: Смарт-ключ Процедуры ремонта


Смарт-ключ Сохранение кода смарт-ключа 1. Подсоедините кабель DLC GDS к разъему канала передачи данных на нижней панели аварийной панели со стороны водителя, включите питание GDS. 2. Выберите модель автомобиля, а затем выполните «Сохранение кода смарт-ключа». 3. После выбора меню «Обучение интеллектуальным клавишам» нажмите клавишу «Ввод», затем t ...