Kia Forte: Система контроля выбросов / Система контроля выбросов паров топлива

Киа Kia Forte 2019-2023 (БД) Руководство по ремонту / Система контроля выбросов / Система контроля выбросов паров топлива

Описание и работа
Описание

Система контроля выбросов паров топлива предотвращает накопление паров топлива в топливном баке. от испарения в атмосферу. Когда топливо испаряется в топливном баке, пар проходит через вентиляционные шланги или трубки в канистру, заполненную древесным углем.

Канистра временно удерживает пары древесного угля. ECM будет контролировать систему для того, чтобы собрать собранный пар в камеры сгорания во время определенные условия эксплуатации. Вакуум в коллекторе двигателя используется для всасывания паров в впускной коллектор.

Принципиальные диаграммы
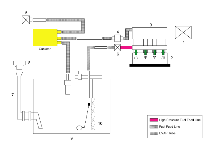
Схематическая диаграмма

1. Воздухоочиститель
2. Напорная труба и инжектор
3. Двигатель
4. Электромагнитный клапан управления продувкой (PCSV)
5. Воздушный фильтр топливного бака
6. Топливный насос высокого давления
7. Топливный шланг
8. Крышка топливного бака
9. Топливный бак
10. Топливный насос низкого давления

Канистра

Канистра заполнена древесным углем и поглощает испаряющиеся пары в топливном баке. собранные пары топлива в адсорбере втягиваются во впускной коллектор блоком ECM/PCM когда созданы соответствующие условия.

Электромагнитный клапан управления продувкой (PCSV)

Электромагнитный клапан управления продувкой (PCSV) установлен в проходе, соединяющем адсорбер и впускной коллектор. Это электромагнитный клапан рабочего типа, управляемый ECM/PCM. сигнал.

Чтобы всосать поглощенный пар во впускной коллектор, ECM/PCM открывает клапан. PCSV, иначе проход останется закрытым.

Крышка топливного бака

Храповое затяжное устройство на резьбовой крышке топливного бака снижает вероятность неправильной установки, что приведет к герметизации заливной горловины. После прокладки на крышка топливного бака и фланец заливной горловины соприкасаются, храповик производит громкий щелчок, указывающий на то, что уплотнение установлено.

Клапан принудительной вентиляции картера (PCV)
Описание и работа Принцип работы Процедуры ремонта Удаление 1. Отсоедините шланг PCV (А). 2. Снимите клапан PCV...
Канистра
Процедуры ремонта Снятие и установка 1. Выключите зажигание и отсоедините отрицательную (-) клемму аккумуляторной батареи. 2. Снимите воздух из топливного бака...
Дополнительная информация:

Kia Forte 2019-2023 (BD) Руководство по обслуживанию: Система охлаждения


Компоненты и расположение компонентов Компоненты 1. Радиатор 2. Верхний шланг радиатора 3. Нижний шланг радиатора 4. Заливная горловина в сборе 5. Охлаждающий вентилятор 6. Верхний монтажный кронштейн радиатора (правый) 7. Верхний кронштейн крепления радиатора (левый) 8. Радиатор ло...

Kia Forte 2019-2023 (BD) Руководство по эксплуатации: Солнцезащитная шторка, Сброс люка


зонтик При открывании люка солнцезащитная шторка также откроется. Как только люк закрыта, солнцезащитный козырек может быть закрывается вручную. Сброс люка Всякий раз, когда аккумулятор автомобиля отключен или выписаны, или связаны предохранитель перегорел, вы должны перезагрузить Система люка выглядит следующим образом: ...