Kia Stinger: электрическая система кузова / индикаторы и датчики
Компоненты и расположение компонентов
|
Стандартный тип («3,5 дюйма»)
|
|
Тип Super Vision («7 дюймов»)
|
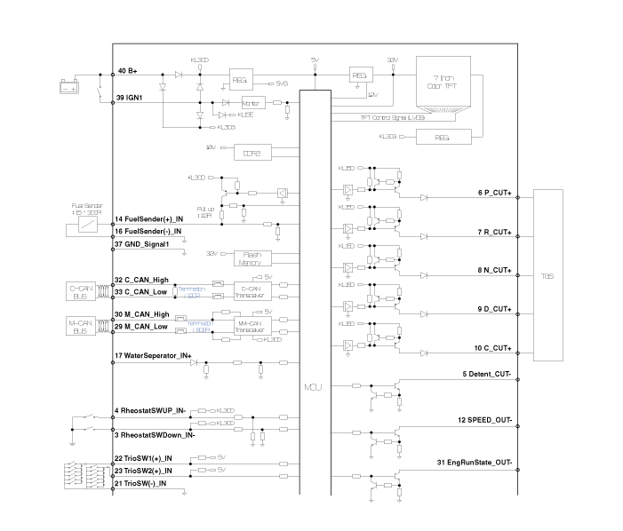
Информация о выводах разъема
Нет.
|
Описание
|
Нет.
|
Описание
|
1
|
Земля (Сигнал 3)
|
21
|
Выключатель отключения (-)
|
2
|
Освещение (-)
|
22
|
Выключатель 1 (+)
|
3
|
Переключатель реостата (вниз)_Input
|
23
|
Выключатель 2 (+)
|
4
|
Переключатель реостата (вверху)_Input
|
24
|
Переключатель режима водителя (CW)_Input
|
5
|
Дент
|
25
|
Переключатель режима водителя (против часовой стрелки)_Input
|
6
|
AT (положение «P»)
|
26
|
Кластерный динамик (+)
|
7
|
AT (положение «R»)
|
27
|
Кластерный динамик (-)
|
8
|
AT (позиция «N»)
|
28
|
-
|
9
|
AT (позиция «D»)
|
29
|
Мультимедиа-CAN (низкий)
|
10
|
AT (положение «S»)
|
30
|
Мультимедиа-CAN (высокий)
|
11
|
-
|
31
|
Состояние работы двигателя_выход
|
12
|
Скорость автомобиля_выход
|
32
|
Шасси-CAN (высокий)
|
13
|
-
|
33
|
Шасси-CAN (низкий)
|
14
|
Датчик топлива (+)_Input
|
34
|
-
|
15
|
Водоотделитель_Ввод (только дизель)
|
35
|
-
|
16
|
Датчик топлива (-)_Input
|
36
|
-
|
17
|
Водоотделитель_Ввод (только дизель)
|
37
|
Земля (Сигнал 1)
|
18
|
ПОДУШКА БЕЗОПАСНОСТИ (+)_Ввод
|
38
|
-
|
19
|
Переключатель давления масла_Input (только бензин)
|
39
|
IGN 1
|
20
|
-
|
40
|
Батарея (+)
|
Принципиальные диаграммы
|
Принципиальная электрическая схема
|
|
Стандартный тип («3,5 дюйма»)
|
|
Тип Super Vision («7 дюймов»)
|
Описание и работа
Коммуникационная сеть
Диаграмма
Сокращение
|
Объяснение
|
АКУ
|
Блок управления подушками безопасности
|
АФТ
|
Адаптивная система переднего освещения
|
AMP
|
Усилитель
|
АУДИО
|
Аудио головное устройство
|
АВМ
|
Круговой монитор
|
B_CAN
|
Сеть контроллеров тела
|
БЧВ
|
Предупреждение о столкновении в слепых зонах
|
C_CAN
|
Локальная сеть контроллера шасси
|
CDP
|
Проигрыватель компакт-дисков
|
КЛУ
|
Кластерный модуль
|
ДАТК
|
Двойной автоматический контроль температуры
|
ДДМ
|
Модуль водительской двери
|
ЕСМ
|
Модуль управления двигателем
|
F_PUMP
|
Модуль управления топливным насосом
|
HUD
|
Проекционный дисплей
|
IBU
|
Встроенный блок управления кузовом
|
отделение интенсивной терапии
|
Интегрированный центральный блок управления
|
IFB
|
Блок интерфейса
|
ИМС
|
Интегрированная система памяти
|
LDW
|
Предупреждение о выходе из полосы движения
|
ЛКА
|
Помощь в уходе за землей
|
M_CAN
|
Мультимедийная сеть контроллеров
|
МДПС
|
Рулевое управление с электроприводом
|
МФЦ
|
Многофункциональная камера
|
МТС
|
Ручной контроль температуры
|
ОРВ
|
Система обнаружения пассажиров
|
P_CAN
|
Локальная сеть контроллера силового агрегата
|
ПКМ
|
Модуль управления силовым агрегатом
|
ПТГ
|
Модуль задней двери с электроприводом
|
РВМ
|
Монитор заднего вида
|
ССС
|
Умный круиз-контроль
|
СКМ
|
Модуль рулевой колонки
|
ТКМ
|
Модуль управления коробкой передач
|
VDC
|
Динамический контроль автомобиля
|
ВПК
|
Беспроводное зарядное устройство
|
Кодирование вариантов кластера
Поскольку у нас есть больше опций (ESC, MDPS и т. д.) в автомобиле, на приборной панели теперь больше
информация для отображения в зависимости от выбранных параметров.
По этой причине нам необходимо узнать, какие варианты есть у автомобиля при замене.
приборная панель.
Чтобы решить эту проблему, курс обучения, основанный на опции, необходимой для
автомобиля при замене приборной панели следует проводить.
Это называется вариантным кодированием.
Функция
|
1.
|
Высокоскоростная связь CAN (C-CAN)
|
–
|
Пользовательская функция: автокресла связаны с включением/выключением движения,
Приветственный свет
|
|
–
|
LDW: Предупреждение о выходе из полосы движения
|
|
–
|
LKA : Лене, ассистент удержания
|
|
–
|
PA: помощь при парковке
|
|
–
|
PDW: Предупреждение о расстоянии парковки
|
|
|
2.
|
Низкоскоростная связь CAN (M-CAN)
|
–
|
AV: аудио/видео Мультимедийный информационный дисплей
|
|
–
|
TBT: отображение навигационной информации с поворотом
|
|
|
3.
|
Различный контроль источника
Различные сигналы тревоги и звуковые эффекты выдаются через внешние динамики
подключен к комбинации приборов.
Звук
|
Описание и функция (приемник данных CAN)
|
Добро пожаловать
|
Добро пожаловать (ключ вынут, а дверь открыта/закрыта, проверено IBU).
|
До свидания
|
До свидания (кластер)
|
Предупреждение об открытой двери
|
Предупреждение о ключе (IBU), скорость автомобиля 5 км/ч или ниже и IGN
переключатель ACC или IGN или запуск двигателя и когда скорость автомобиля ниже
5 км/ч или при открытой двери со стороны водителя
|
Предупреждение о непристегнутом ремне
|
Предупреждение о непристегнутом ремне водителя (IBU)
|
Предупреждение системы PDW
|
Предупреждение о неисправности датчика PDW (IBU)
|
Шестерня Р
|
Предупреждение PDW при переключении передачи R (IBU и PA)
|
Ручной тормоз
|
Предупреждение о стояночном тормозе (IBU)
|
Кнопка Пуск
|
Предупреждение о кнопке SSB (IBU)
|
Информация о свете реостата
|
Предупреждение реостата при выборе максимальной или минимальной степени (кластер)
|
Отправление смарт-ключа
|
Предупреждение об отсутствии смарт-ключа (IBU)
|
Умный круиз
|
Переход с обычного круиза на интеллектуальный круиз (SCC)
|
Информация о вождении Smart Cruise
|
Отмена функции Smart Cruise (SCC)
|
Обычный круиз
|
Переход с умного круиза на обычный круиз (SCC)
|
Лампа указателя поворота (галочка)
|
Предупреждение лампы указателя поворота (IBU)
|
Лампа указателя поворота (Tock)
|
Предупреждение лампы указателя поворота (IBU)
|
Низкое напряжение батареи смарт-ключа
|
Предупреждение, когда водитель нажимает кнопку SSB с аккумулятором низкого напряжения
смарт-ключ (IBU)
|
Предупреждение EPB
|
Предупреждение при переходе с автоматического удержания на блокировку EPB (EPB)
|
Аварийный сигнал температуры охлаждающей жидкости
|
При температуре двигателя выше 120 °C (EMS)
|
|
|
4.
|
Режим пользовательских настроек (USM)
Настройку можно изменить с помощью меню тактильного переключателя и CW, CCW,
Кнопки OK (или кнопки ВВЕРХ, ВНИЗ, ВЛЕВО, ВПРАВО и OK общего переключателя).
Всего 24 элемента (например, Синхронизация мест входа/выхода, Вход/выход).
Синхронизация рулевого колеса, автоматическая блокировка дверей, автоматическое отключение блокировки дверей,
Сопровождение фар, приветственный свет, приветственный звук, тройной сигнал поворота, средний
Автоматический сброс расхода топлива, регулировка высоты HUD, яркости и контента
Setup), которые можно установить и настроить. Поток сигнала во время настройки
следующее.
|
(1)
|
Настройки УСМ устанавливаются, они передаются в IBU.
|
|
(2)
|
IBU передает настройки по B-CAN на соответствующие модули.
|
|
(3)
|
Модуль завершает настройку и передает измененную настройку
в МСБ.
|
|
(4)
|
IBU передает окончательные настройки по шине C-CAN на кластер.
|
Кластер связывается напрямую с модулями C-CAN.
|
|
|
Поиск неисправностей
Элемент ошибки
|
Симптом отказа
|
Пункты проверки
|
Подробные проверки
|
Соответствующие части/
Компоненты
|
Экранный дисплей
|
ЖК-экран не включается
|
|
1)
|
Соединительные приспособления
|
|
|
1)
|
Проверьте крепления разъема
|
|
2)
|
Проверьте проводку B+, IGN и GND.
|
|
Разъемы, проводка, предохранители, приборная панель
|
Предупреждающий свет
|
Неисправность контрольной лампы подушки безопасности
|
|
1)
|
Соединительные приспособления
|
|
|
1)
|
Проверить подушку безопасности + сигнал (разъемы)
|
|
2)
|
Проверьте сигнал C-CAN (ACU4)
|
|
3)
|
Проверьте вложение FPC внутри приборной панели.
|
|
Разъемы ACU, проводка, предохранители, приборная панель
|
Преобразование режима
|
Неисправность встроенного режима вождения
|
|
1)
|
Соединительные приспособления
|
|
|
1)
|
Проверьте вход переключателя (разъем)
|
|
2)
|
Проверьте входной сигнал переключателя
(обрыв или короткое замыкание)
|
|
3)
|
Проверьте преобразование с помощью компонента панели мониторинга
|
|
Разъем переключателя, проводка приборной панели
|
Освещение
|
Яркость внутреннего освещения не регулируется.
|
|
1)
|
Соединительные приспособления
|
|
|
1)
|
Проверьте, достигает ли входной сигнал выключателя света разъем
|
|
2)
|
Проверьте сигналы ILL- и DETENT
|
|
3)
|
Проверьте вход сигнала TAIL+
|
|
Разъем переключателя, проводка приборной панели
|
Предупреждающий звук
|
Нет сигнализации на приборной панели
|
|
1)
|
Соединительные приспособления
|
|
2)
|
Автомобильные динамики
|
|
|
1)
|
Проверьте выходной разъем динамика
|
|
2)
|
Проверьте автомобильные динамики
|
|
Разъемы динамиков, проводка приборной панели
|
Индикатор топлива
|
Неверная индикация указателя уровня топлива
|
|
1)
|
Соединительные приспособления
|
|
|
1)
|
Проверьте вход топлива и разъемы GND.
(обрыв, короткое замыкание или значения входного сопротивления)
|
|
2)
|
Проверить датчик топлива
|
|
Разъем датчика уровня топлива, проводка приборной панели
|
Компоненты и расположение компонентов
Расположение компонента
1. Переключатель звукового сигнала
2. Реле звукового сигнала (встроено в печатную плату с металлическим сердечником)
3. Рог (низкий тон)
4. Рог (высокий тон)...
Технические характеристики
Технические характеристики
Предметы
Технические характеристики
Номинальное напряжение
12 В постоянного тока
Рабочее напряжение
ДС 9 - 16...
Дополнительная информация:
Система памяти положения водителя — это средство, которое позволяет сиденью водителя, ноге
удлинитель, рулевое колесо, наружные зеркала, приборная панель и проекционный дисплей (HUD) для
управляться простой кнопочной операцией, которая позволяет водителю вспомнить запомненные
места для вождения и автоматический контроль ...
Компоненты и расположение компонентов
Компоненты
1. Консоль готова
2. Лоток напольной консоли
3. Верхняя часть консоли в сборе
4. Ботинки с рычагом
5. Коврик для ящика для хранения консоли
...