Kia Stinger: система задней двери с электроприводом / модуль задней двери с электроприводом

Kia Stinger CK 2018-2023 Руководство по ремонту / Электрическая система кузова / Система задней двери с электроприводом / Модуль задней двери с электроприводом

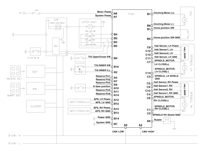
Компоненты и расположение компонентов
Компоненты

Нет.
Соединитель А
Соединитель Б
Соединитель С
1
Источник питания
Затяжной мотор (+)
Двигатель шпинделя (прав.)_Закрыть (-)
2
Освещение (внутренний выключатель задней двери)
Переключатель полного открытия задней двери
Датчик Холла (правый)_Мощность
3
-
Переключатель полного запирания двери багажника
Шпиндель (левый) shild_Ground
4
B-CAN (высокий)
Выключатель блокировки половины багажника
Датчик Холла (правый)_Земля
5
B-CAN (низкий уровень)
Переключатель исходного положения_Земля
Шпиндель (правый) shild_Ground
6
Зуммер
Выключатель замка двери багажного отделения _Ground
Датчик Холла (левый)_Мощность
7
-
Системное заземление
Двигатель шпинделя (левый)_Закрыть (+)
8
Мотор задней двери
Затяжной двигатель (-)
Двигатель шпинделя (прав.)_Закрыть (+)
9
-
Переключатель открывания/закрывания багажника
Датчик Холла 1 (правый)
10
Положение шестерни N
Внутренний переключатель задней двери
Датчик Холла 2 (правый)
11
-
Переключатель исходного положения
Датчик Холла (левый)_Земля
12
Полоска против защемления (левая) Power
Полоска против защемления (левая)_Земля
Датчик Холла 1 (левый)
13
Полоска против защемления (RH+ Power
Полоска против защемления (RH)_Ground
Датчик Холла 2 (левый)
14
-
Силовая земля
Двигатель шпинделя (левый)_Закрыть (-)

Принципиальные диаграммы
Принципиальная электрическая схема

Процедуры ремонта
Удаление
а.

После замены новым модулем двери багажного отделения с электроприводом проверьте наличие DTC. код на все времена.

Если существует код DTC B24B0, выполните изменение режима двери багажного отделения с электроприводом.

(См. Система задней двери с электроприводом — «Устранение неполадок»)

б.

После замены на новый модуль задней двери с электроприводом выполните инициализация системы.

(См. Система задней двери с электроприводом — «Устранение неполадок»)

в.

Перед доставкой клиенту включите заднюю дверь с электроприводом, чтобы Убедитесь, что нет звукового предупреждения.

1.

Отсоедините отрицательную (-) клемму аккумуляторной батареи.

2.

Снимите боковую обшивку багажника [LH].

(См. Кузов — «Боковая отделка багажника»)

3.

Отсоедините разъемы модуля задней двери с электроприводом (А).

4.

Снимите модуль задней двери с электроприводом (А), предварительно ослабив крепежные гайки.

Монтаж
1.

Установите модуль задней двери с электроприводом.

2.

Подсоедините разъемы модуля задней двери с электроприводом.

3.

Установите боковую обшивку багажника [LH].

4.

Подсоедините отрицательную (-) клемму аккумуляторной батареи.

осмотр

Инспекция власти Модуль задней двери

См. Система задней двери с электроприводом — «Поиск и устранение неисправностей».

Система задней двери с электроприводом
Компоненты и расположение компонентов Компоненты 1. Полоска против защемления (2 шт.) 2. Шпиндель задней двери с электроприводом (2 шт.) 3. Зуммер двери багажного отделения с электроприводом 4. Переключатель бокового аварийного щитка 5. ...
Защелка багажника с электроприводом
Процедуры ремонта Удаление 1. Отсоедините отрицательную (-) клемму аккумуляторной батареи. 2. Снимите обшивку задней двери. (См. Кузов - "Отделка задней двери"...
Дополнительная информация:

Kia Stinger CK 2018-2023 Руководство по техническому обслуживанию: полоса против защемления


Процедуры ремонта Удаление 1. Отсоедините отрицательную (-) клемму аккумуляторной батареи. 2. Снимите обшивку задней двери. (См. Кузов — «Отделка задней двери») 3. Отсоедините разъем планки защиты от защемления (А). ...

Kia Stinger CK 2018-2023 Руководство по техническому обслуживанию: Электромагнитный клапан контроля давления в магистрали (LINE_VFS)


Технические характеристики Технические характеристики Элемент Спецификация Тип управления N/L (нормально низкий) Управляющее давление кПа (кгс/см², psi) 0–519,75 (0–5,3, 0–75,38) Ток (мА) 0 - ...