#заголовок

Hyundai Sonata: Схемы стояночной тормозной системы / электрического стояночного тормоза (EPB)

Hyundai Sonata LF 2014-2019 Руководство по ремонту / Тормозная система / Стояночная тормозная система / Принципиальные схемы электрического стояночного тормоза (EPB)

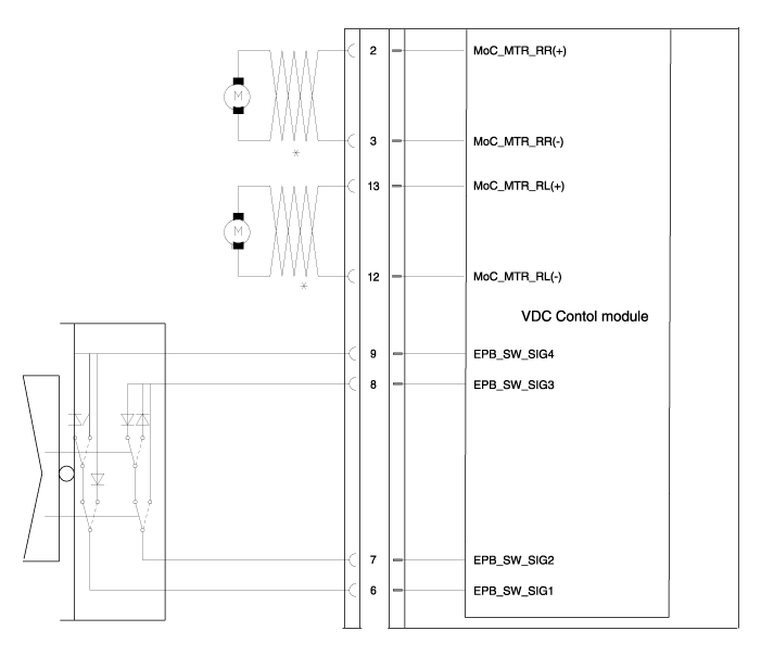
Схематическая диаграмма

Терминальная функция
Контакт №
Функция
Контакт №
Функция
6
Сигнал ЕРВ 1
2
Мощность двигателя RR EPB
7
Сигнал ЕРВ 2
3
Масса двигателя RR EPB
8
Сигнал ЕРВ 3
12
Мощность двигателя РЛ ЭПБ
9
Сигнал ЕРВ 4
13
Масса двигателя RL EPB

Электрический стояночный тормоз (EPB) Описание и работа
Описание EPB — это электронный стояночный тормоз. EPB отличается от существующих парковочных систем, которые с педалью тормоза или рычажного типа. Система EPB посылает сигнал т...
Электрический стояночный тормоз (EPB) Процедуры ремонта
Выпуск EPB 1. Выключите зажигание и отсоедините отрицательный (-) кабель аккумуляторной батареи. 2. Подключите GDS к разъему канала передачи данных, расположенному под приборной панелью. 3. Выбирайте и работайте...
Дополнительная информация:

Руководство по обслуживанию Hyundai Sonata LF 2014-2019: Описание и работа
Описание Система иммобилайзера отключит автомобиль, если используется правильный ключ зажигания, в дополнение к имеющемуся в настоящее время противоугонных систем, таких как автомобильная сигнализация, система иммобилайзера направлена ​​на резко снизить количество угонов автомобилей. 1. Транспондер (TP) – IMMO ECU Comm ...

Hyundai Sonata LF 2014-2019 Руководство по техническому обслуживанию: Принципиальные схемы блока управления топливным насосом (FPCM)
Принципиальная электрическая схема Клемма модуля управления давлением топлива (FPCM) и входной/выходной сигнал Функция терминала FPCM Номер контакта ОписаниеПодключен к 1 Заземление датчика топлива Топливный насос 2 Вход сигнала датчика давления топлива (FPS) Датчик давления топлива (FPS) 3CAN [High] ?ECM 4 Электропитание датчика давления топлива (FPS) ( ...

avtotema.org